Современная вилла
в 15 минутах от Москвы

Современная технологичная вилла от архитектурно-строительной компании ONEHOUSE
Запишитесь на просмотр дома в удобное для вас время
Идеальное пространство для вашей жизни
Вилла собрала в себе наш многолетний опыт проектирования и наблюдения за современными архитектурными решениями, новейшими технологиями и загородной жизнью.
1
вилла
15
750
1120
СОТОК
М2
М2
Площадь участка
Жилая площадь
Площадь дома с террасами
Роскошный современный интерьер
2
интерьер
консультация
Запишитесь на просмотр виллы
Подробно расскажем о вилле, поселке и ответим на ваши вопросы.
Cогласен на обработку персональных данных, а также с политикой конфиденциальности
Андрей
Консультант по архитектуре
Уникальное сочетание близости к городу
и единения с природой
Вилла находится в коттеджном поселке «Рождественно», всего в 7 км от МКАДа. 15 мин до Москва-Сити.
3
расположение
7
15
минут
минут
От дома до МКАДа
От дома до ДЦ «Москва-Сити»
БРУТАЛЬНО, КОНТРАСТНО И ОЧЕНЬ КОМФОРТНО
Экстерьер дома - это трендовый минимализм. Простые формы всегда будут в тренде, фасады выполнены в едином материале, это темная клинкерная плитка с эффектом старины.
4
архитектура
Вилла вместила в себя все преимущества современной архитектуры: открытые функциональные пространства, панорамные окна, плоскую эксплуатируемую кровлю.
Наружные и внутренние стены выполнены из кирпича и монолитного железобетона. Для облицовки фасада используем темную клинкерную плитку. Она выполнена из натурального сырья и не выделяет вредных веществ в процессе эксплуатации.
Стены
Используем герметичные окна Schuco для эффективного сохранения тепла и защиты от посторонних звуков с улицы. Они отличаются высоким качеством и долговечностью, что гарантирует долгий срок службы без необходимости частого обслуживания.
окна
В качестве основания используем разноуровневый фундамент из ленты и монолитной железобетонной плиты 300 мм, которые обеспечивают сохранение вертикального положения в любых условиях, равномерное распределение давления и устойчивость.
фундамент
Наружные и внутренние стены выполнены из кирпича и монолитного железобетона. Для облицовки фасада используем темную клинкерную плитку. Она выполнена из натурального сырья и не выделяет вредных веществ в процессе эксплуатации.
Стены
Используем герметичные окна Schuco для эффективного сохранения тепла и защиты от посторонних звуков с улицы. Они отличаются высоким качеством и долговечностью, что гарантирует долгий срок службы без необходимости частого ремонта.
Окна
В качестве основания используем разноуровневый фундамент из ленты и монолитной железобетонной плиты 300 мм, которые обеспечивают сохранение вертикального положения в любых условиях, равномерное распределение давления и устойчивость.
фундамент
комфорт
в каждой детали
Выгодное расположение на участке
детали
Большое количество помещений по видовым точкам
Эффективная логистика внутри дома
Высокая эргономика пространств
Террасы для уличного отдыха
Двусветное пространство первого этажа
1
2
3
4
5
6
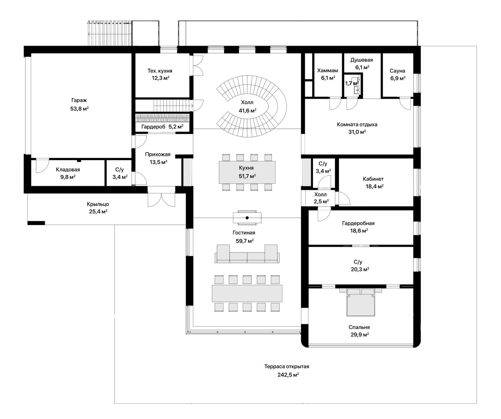
первый этаж
планировка
393,3 м
2
помещения
Кухня-гостиная
1
Санузел
2
Гардеробная
3
Гостевая спальня
4
Санузел
5
Котельная
6
Холл
7
Прихожая
8
первый этаж
планировка
393,3 м
2
Площадь
Список помещений
второй этаж
191,8 м
2
Площадь
Список помещений
второй этаж
планировка
191,8 м2
2
помещения
Мастер-спальня
1
Спальня 1
2
Санузел 1
3
Спальня 2
4
Санузел 2
5
Холл
6
Эксплуатируемая кровля
7
консультация
Запишитесь на просмотр виллы
Подробно расскажем о вилле, поселке и ответим на все вопросы.
Cогласен на обработку персональных данных, а также с политикой конфиденциальности
Андрей
Консультант по архитектуре
фасад как символ качества
Фасады выполнены в едином материале, это темная клинкерная плитка с эффектом старины.
фасад
экологичные материалы
Натуральный и долговечный материал, который удобен в эксплуатации, со временем не потеряет цвет и форму.
продвинутая инженерия
Встроенные конвекторы
инженерия
Дизайнерcкие радиаторы
Электроприводы штор
Приточно-вытяжная установка
Охранная система
1
2
3
4
5
Современные инженерные системы в доме позволяют обеспечить высокий уровень комфорта и безопасности, снизить затраты на эксплуатацию здания. Они также способствует снижению негативного воздействия на окружающую среду за счёт оптимизации энергопотребления.
Современно
и безопасно
Видеонаблюдение
умный дом
Датчики движения
2
В доме установлена современная система управления домом и видеонаблюдением.
Управление вентиляцией
Управление отоплением
консультация
Запишитесь на просмотр виллы
Подробно расскажем о вилле, поселке и ответим на все вопросы.
Cогласен на обработку персональных данных, а также с политикой конфиденциальности
Андрей
Консультант по архитектуре
характеристики виллы
параметры
Этажей
Общая площадь
Теплая площадь
Эксплуатируемая терраса
Высота потолков
Просторная кухня-гостиная
Спальни
С/У
3
1120 м2
750 м2
370 м2
10 м
150 м2
7
10
Спа зона
Кабинет
Спортзал
Гараж
Блок для персонала
Фасады
Окна
Кровля
Сауна и хамам
Есть
Есть
2 места
С отдельным входом
Клинкерная плитка Leonardo Stone
Schuco
Мембранная «Технониколь» LOGICROOF
Вентиляция
Автоматизация
Газовая
Современная система управления домом
Современная система управления
КП «Рождественно»
5
локация
Коттеджный поселок Рождественно на Рублево-Успенском шоссе предлагает премиальные коттеджи, построенные из экологически чистых материалов.
Поселок граничит с Подушкинским лесопарком и имеет живописную парковую зону с фонтанами и детскими площадками.
Вся инфраструктура Рублевки, включая престижные школы и спортивные комплексы, находится вблизи. Охраняемая территория с системой видеонаблюдения обеспечивает высокий уровень безопасности.
Все условия для комфортной жизни
Внешняя инфраструктура поселка хорошо развита. В радиусе 5 км от дома для жителей посёлка есть множество объектов для разных потребностей.
инфраструктура
Супермаркеты
Рестораны
Школы
Детские сады
Фитнес-центры и SPA
Коммуникации поселка
Газ
Коммуникации
Центральный водопровод
Центральная канализация
2
Электричество
Асфальтированные дороги
Интернет и телефония
цЕна по запросу
Оставьте заявку на запрос стоимости
Подробно расскажем о вилле, поселке и ответим на ваши вопросы.
Cогласен на обработку персональных данных, а также с политикой конфиденциальности
Андрей
Консультант по архитектуре
АРХИТЕКТУРА И ДИЗАЙН
Архитектурно-строительная компания с комплексным подходом к проектированию и строительству домов премиум-класса.
6
девелопер
Forbes-100
Клиенты компании
200+
Реализованных проектов
15
Городов с нашей архитектурой
72
Человека в команде
для вас
индивидуальный проект
Спроектируем и построим индивидуальный проект, адаптированный под ваши запросы.
Cогласен на обработку персональных данных, а также с политикой конфиденциальности
Андрей
Консультант по архитектуре